Title Page
-
Site conducted
-
Competent Schenker Person Conducting Induction
-
Contractor Name
-
Contractor Company
Untitled page
-
Welcome to our facility and wish you have safe visit. Do note we have take all reasonable steps to maintain a high standard of hygiene within our facility which includes increased deep cleans with regular touch point cleaning of frequently touched and used areas. There is no requirement to socially distance, but please be respectful of other staff and visitors who may wish to maintain a space between one another and not be amongst crowds of people within the spaces including, but not limited (Kitchens, Lifts, and meeting rooms) or whilst holding face to face conversations.. When entering the building you will be requested to take your temperature. If you have a temperature over 38C, you are not permitted to enter the building and will be requested to re-book your visit. When on site, it is advisory to wear a face covering when moving around the building.
-
It has been proven that high standards of personal hygiene is the most effective way of reducing spread of the viruses, colds and other bacterial infections. Antibacterial hand sanitiser will be available for you to use at entry and exit points to the building and we ask that you maintain hand washing regime as you did during the peak of the COVID19 pandemic. You will be provided with antibacterial wipes to support with the reduction of cross contamination at major touch points.
-
Photo of inductee.
-
Frequency of return visits
- Regular (Min several visits per year)
- Infrequent (Specific, return greater than Once a year)
-
A refresher induction will be required after 24 months for business policy/process updates
-
If no visit after no return for 12 months. An induction refresher is required
-
Trade/Profession
- Air Conditioning Engineer/Installer
- Builder
- Cleaner
- Drainage Specialist
- Dock Leveler/Shutter Door Engineer
- Electrician
- Fire Extinguisher Installer/Service Eng
- Fire/Security Detection Engineers
- FLT/PPT Engineer/Tech
- Gardener
- Gas Heating Engineer
- HGV/Trailer Fitters
- Joiner
- Passenger Lift Engineer
- Painter & Decorator
- Pest Control
- Plumber
- Racking/Storage Installer/Maint.
- Service Engineer (Equipment)
- Roofer
- Waste/Recycling Contractor
- Water Test Engineer
- Other
-
Evidence of F-Gas Qualification/Competence.
-
-
Evidence of Mechanical/Electrical Engineering (or Similar) Qualification/Competence
- Evidence of Skills card (Photo/Certificate) Received & Uploaded
-
Evidence of NICEIC/JIB Grade 18th Ed. (or Similar) Qualification/Competence
- Evidence of Skills card (Photo/Certificate) Received & Uploaded
-
Evidence of City and Guild (or Similar) Qualification/Competence
- Evidence of Skills card (Photo/Certificate) Received & Uploaded
-
Evidence of Fire Industry Association/Electrician (or Similar) Qualification/Competence
- Evidence of Skills card (Photo/Certificate) Received & Uploaded
-
Evidence of Mechanical Engineering (or Similar) Qualification/Competence
- Evidence of Skills card (Photo/Certificate) Received & Uploaded
-
Evidence of City & Guild (or Similar) Qualification/Competence
- Evidence of Skills card (Photo/Certificate) Received & Uploaded
-
Evidence of Mechanical (or Similar) Qualification/Competence
- Evidence of Skills card (Photo/Certificate) Received & Uploaded
-
As part of your role, are you required to drive LGV/HGV's independently or hitched to a trailer?
-
Evidence of LGV/HGV Licence is required
-
Evidence of City and Guild (or Similar) Qualification/Competence
- Evidence of Skills card (Photo/Certificate) Received & Uploaded
-
Evidence of Mechanical/Electrical Engineering (or Similar) Qualification/Competence
- Evidence of Skills card (Photo/Certificate) Received & Uploaded
-
Evidence of City and Guilds (or Similar) Qualification/Competence
- Evidence of Skills card (Photo/Certificate) Received & Uploaded
-
Evidence of Pest Control (or Similar) Qualification/Competence
- Evidence of Skills card (Photo/Certificate) Received & Uploaded
-
Evidence of City and Guilds (or Similar) Qualification/Competence
- Evidence of Skills card (Photo/Certificate) Received & Uploaded
-
Evidence of a SEMA based (or Similar) Qualification/Competence
- Evidence of Skills card (Photo/Certificate) Received & Uploaded
-
Does your task require you to work in a MEWP (Cherry Picker/Genie Boom/Scissor Lift)
-
Provide IPAF 3a3b Certificate/Card evidencing competency to operate equipment
-
Evidence of Mechanical/Electrical Engineering (or Similar) Qualification/Competence
- Evidence of Skills card (Photo/Certificate) Received & Uploaded
-
Evidence of City and Guilds (or Similar) Qualification/Competence
- Evidence of Skills card (Photo/Certificate) Received & Uploaded
-
Evidence of Waste Management (or Similar) Qualification if applicable/Competence
- Evidence of Skills card (Photo/Certificate) Received & Uploaded
-
Evidence of City and Guilds (Or similar) Qualification/Competence
- Evidence of Skills card (Photo/Certificate) Received & Uploaded
-
Evidence of City and Guilds (Or Similar) Evidence/Competence
- Evidence of Skills card (Photo/Certificate) Received & Uploaded
-
Evidence of water testing(or similar) qualification/competence.
- Evidence of Skills card (Photo/Certificate) Received & Uploaded
-
Evidence of Gas Safe Qualification or similar.
- Evidence of Skills card (Photo/Certificate) Received & Uploaded
-
Please enter Trade or Profession and provide evidence of qualifications/competency.
Permits to Work
-
For certain high risk tasks (Electrical/Hot work/Working at Height). In accordance with our process QSHE SOP 023, you'll need a permit to work.
-
Does your task involve any of the If your task requires you to perform any of the following, you will need a permit to work and follow the instructions and requirements of that process.
- Electrical work (Installation/Modification/Removal)
- Generation of Flame/Heat/Sparks
- Working at height using (Ladders/MEWP's/Platforms)
- Not applicable
-
Complete QSHE 183a Electrical Work Permit
-
Complete QSHE 183b Hot work Permit
-
QSHE 183c Work at Height (WaH) Permit
Fire Safety
-
If you discover a fire you must raise the alarm by activating the nearest call point then leaving the building by the nearest exit. Prominent escape signage will be throughout the facility.
-
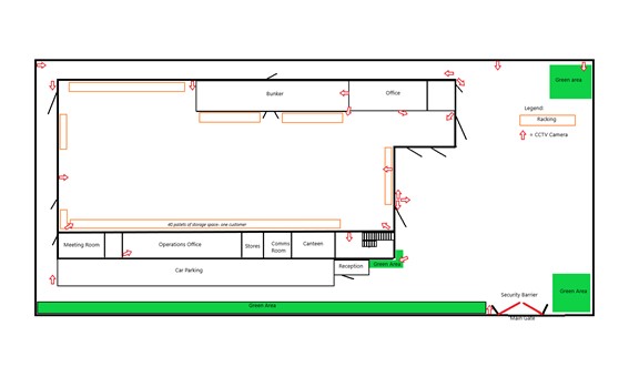
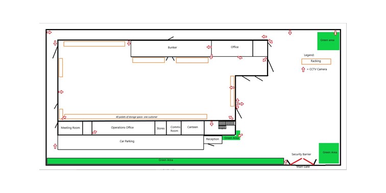
In the Event of an alarm, report to the nearest assembly point. (As per map)
- Aberdeen Unit 1&2
- Aberdeen Unit 3
- Ballycoolin 624
- Ballycoolin Land
- Ballycoolin 635
- Basildon
- Bournemouth
- Bradford Dealburn Road
- Bradford Spartan Road
- Bristol
- Cork
- Cumbernauld
- Doncaster
- Felixstowe
- Belfast
- Furry Park
- Heston LDC
- Heathrow
- Hayes
- Glasgow
- Liffey Park
- Manchester
- NEC Birmingham
- Nuneaton
- Shannon
- Swords
- Tamworth
- Tamworth 3
-
-
-
-
-
-
-
-
-
-
-
-
-
-
-
-
-
-
-
-
-
-
-
Your nearest assembly point is located?
-
As part of our emergency preparedness programs on site, we test our alarm weekly. The scheduled tests are planned for?
-
When working on our sites, you must sign in at RECEPTION (Drivers reception if collection/delivery driver)upon arrival and sign out when you LEAVE. This applies for each day you are working.
Site Rules
-
No Smoking On Site (Except in designated areas) This includes e-cigarette/vaping
-
No reversing without a banksman. This applies to any vehicle where your view of what is around you (in any direction) is obscured and not clear. At Schenker we have trained banksman who can help, please ask a Schenker staff member to assist.
-
Site Speed Limit is typically 10mph. Do be mindful that some different areas within the site, a lower limit may apply, therefore you must observe the site speed limits signs and take advice offered by staff.
-
Facilities are provided, please take advantage of these routinely cleaned facilities for all your welfare needs. Please be mindful of the next user, clean and tidy after yourself and leave the facility in a state you'd expect to find it.
-
Within our warehouses and yard areas, fork lift trucks, other lifting equipment together with HGV's and other goods carrying vehicles are in operation. Be mindful of the maneuverability and stopping distances of these vehicles, it is easier for you to stop and avoid than vice versa. Stick to pedestrian walkways when walking from point to point in these areas.
-
Be Mindful and respect the Unauthorised Person Access Areas. This may change during any work activity.
-
You do not have permission to operate FLT's/PPT's and any other Schenker owned equipment (Exception applied if you are a dedicated service engineer for that type of equipment). If you need anything moving please ask a member of Schenker staff who will be able to assist.
Site Security
-
Our security on our sites starts upon your arrival. If you haven't done so, please sign in using the visitor system at reception filling in all the relevant details. Please display your security pass at all times whilst on our site and hand back to reception when your visit is concluded. Some sites have a higher level of security to comply with regulatory requirements. To work without chaperone, you will need to hold relevant Aviation Security Training.
-
Does your Schenker Site require a higher level of aviation security training?
- Cork
- Heston LDC
- Heathrow
- Nuneaton
- Shannon
- Swords
- None of the Above
-
Evidence of Aviation Security Training
-
As Contractor has not completed Air Cargo Security Training 11.2.7/11.2.3.9 or similar they will require constant supervision/accompaniment whilst onsite to meet IATA Regulations.
-
Evidence of Aviation Security Training
-
As Contractor has not completed Air Cargo Security Training 11.2.7/11.2.3.9 or similar they will require constant supervision/accompaniment whilst onsite to meet IATA Regulations.
-
Evidence of Aviation Security Training
-
As Contractor has not completed Air Cargo Security Training 11.2.7/11.2.3.9 or similar they will require constant supervision/accompaniment whilst onsite to meet IATA Regulations.
-
Evidence of Aviation Security Training
-
As Contractor has not completed Air Cargo Security Training 11.2.7/11.2.3.9 or similar they will require constant supervision/accompaniment whilst onsite to meet IATA Regulations.
-
Evidence of Aviation Security Training
-
As Contractor has not completed Air Cargo Security Training 11.2.7/11.2.3.9 or similar they will require constant supervision/accompaniment whilst onsite to meet IATA Regulations.
-
Evidence of Security Training
-
As Contractor has not completed Air Cargo Security Training 11.2.7/11.2.3.9 or similar they will require constant supervision/accompaniment whilst onsite to meet IATA Regulations.
Personal Protective Equipment (PPE)
-
Our Sites with warehouse and yard areas have a site minimum requirement of Hi-Vis Coats/Tabards and Safety footwear
-
In accordance with your Risk Assessment and Method Statement (RAMS) is there a requirement for additional PPE?
-
Please list
- Face Shield
- Fabric/Paper Overalls
- Gloves
- Hearing Protection
- Safety Glasses/Goggles
- Other
-
Is your additional PPE manufactured to EN standards?
-
Advise standard and how this ensures your safety
Mobile Phones
-
The use of mobile phones whilst driving or operating equipment is prohibited. Mobile phones are also a distraction at other times, only make/take your calls in safe environments such as an office, meal room or similar away from lifting equipment, operational plant and vehicles etc.
Environmental Considerations
-
At Schenker, we consider nothing as waste until it is wasted, as part of our wider sustainability goals, in the 1st instance we prioritise reusing or finding an alternative use. If something must be disposed of, please ensure the correct waste stream is used. (We welcome any suggestions for alternative uses for our waste)
-
Are you generating wastes as part of your task
-
Who is providing your waste management
- Schenker's waste management solution
- Your own waste management solution
-
Provide details of your waste carrier to ensure compliance to the regulations
-
If during your task and any spillages of chemicals or controlled substances occurs, or you witness a spillage, please report this immediately to a Schenker member of staff. We have trained staff and equipment which we can use to safely and effectively to contain any spillages.
First Aid
-
Trained first aiders are available across the site to assist you. Should you require first aid, please report to the nearest Schenker member of staff who will be able to assist and get you the help you require.
-
As part of your work group are you using your own First Aid trained staff?
Manual Handling
-
Be mindful of the risks posed by manual handling. Please ask any of the Schenker team if we can assist with the movements of your equipment and other work materials.
Incident Reporting
-
All accidents, incidents including those with an environmental impact, please report these to a Schenker member of staff to minimise your exposure.
Drugs and Alcohol
-
Schenker has a ZERO tolerance to being under the influence of drugs and alcohol and detailed in QSHE SOP 009 Substance Misuse Process, if you are involved in an accident at a Schenker facility, part of the investigation may involve an alcohol and drugs test performed by our in-house trained managers/approved testers. Additionally, should anyone be suspected of being under the influence of alcohol/drugs and verified by 2 managers, this may result in a test. Failed tests will result in removal from site. Upon completion of this induction and commencement of your task you are agreeing to submit to a drugs and alcohol test if requested to do so.
Agreement
-
At Schenker we strive to exceed our customers expectations, keep our colleagues safe as well as our guests and visitors to our sites and this includes you! The way we manage this is by complying to the international standards ISO 9001:2015, ISO 14001:2015 and ISO 45001:2018 as well as our legal obligations under the Health and Safety at Work (UK) and Safety, Health and Welfare (IE) Acts. We appreciate your assistance and by completing this induction and complying with the guidance detailed above, you are helping us achieve our aims. Our certificates are available for you to view together with our QSHE policy which has been approved by our UK and Ireland CEO
-
I confirm understanding of all the site rules and arrangements.
-
Date