Information

  • Site conducted

  • Location
  • Conducted on

  • Gang name

  • Conducted by

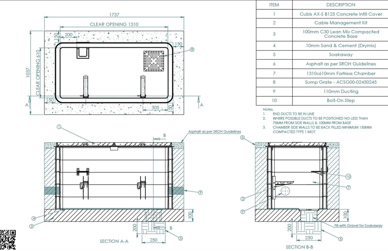
  • FW4 chamber X4 rings

    8CE3CCEB-FFBA-4C10-98DE-4AEB1867D19C.jpeg.jpg
  • FW6 chamber X5 rings (NB.. sump required )

    7DA86608-1A7D-4ABE-983A-C2F3BE866D43.jpeg.jpg

Reinstatement

  • All chambers must be checked using gas detector before and whilst entering chamber .

  • Has all reinstatement surrounding chamber been finished to Hauc spec ? (PROVIDE PHOTO)

  • Is chamber profile correct with existing ground ? (PROVIDE PHOTO)

Structural

  • Does the frame and lid sit firmly/ neatly on the chamber

  • Are the walls and floor smooth and rectangular (visual test only)

  • Are all duct entries correctly located?

  • Are all ducts reasonably flush and sealed into chamber wall ?

  • Is all box furniture correctly fitted in chamber ?

  • Is depth of chamber to correct spec for the size of chamber ?

  • Please confirm CF BAE contacted

  • Overall how would you rate the quality of box build and location

Summary photos

  • Please provide any comments to support your audit

  • Please provide photos to support your audit

Signature

  • Agent please sign.

The templates available in our Public Library have been created by our customers and employees to help get you started using SafetyCulture's solutions. The templates are intended to be used as hypothetical examples only and should not be used as a substitute for professional advice. You should seek your own professional advice to determine if the use of a template is permissible in your workplace or jurisdiction. You should independently determine whether the template is suitable for your circumstances.