Title Page

  • Job Name: Wheel wash Stapylton Landfill Facility

  • Job Number: 4041

  • Site Location
  • Conducted on

  • Prepared by

Conduit Installation

  • CB ENERGY - STAPYLTON LANDFILL CONDUIT INSTALLATION

  • Has the the existing roadway been saw cut?

  • Length of trench (mtrs)

  • Has the trench been excavated to the required depth?<br>(850mm - 900mm)<br>Photo of trench depth.

  • Has bedding sand been installed?<br>(75mm minimum)<br>Photo of bedding sand.

  • Has the conduit/s been installed with correct cover?<br>(600mm minimum cover required)<br>Photo of conduit depth.

  • Have the conduits been covered with sand and electrical marker tape installed? <br>Photo of warning tape installed.

  • Has the the trench been backfilled with lean mix in layers?<br>(approx 150mm - 200mm)

  • Photo evidence - Lean mix layer 1

  • Photo evidence - Lean mix layer 2

  • Photo evidence - Lean mix layer 3 Is key-in to existing required

  • Has the the conduit installation and backfilled been completed as per the design, and the work area been left safe & clean?

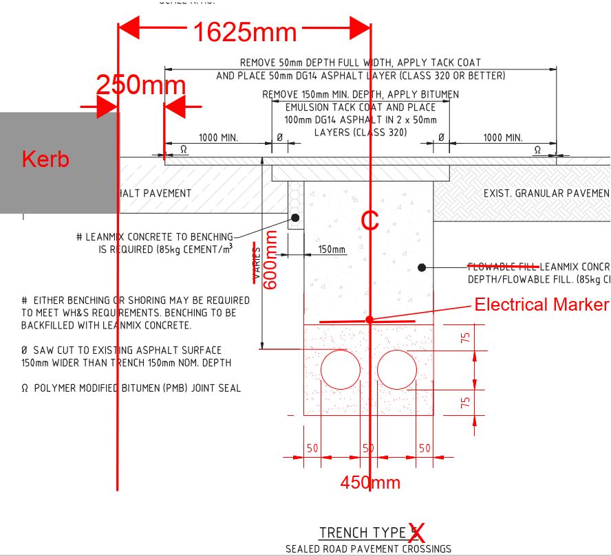
  • trench detail.jpg

Asphalt Reinstatement

  • Has the existing pavement been milled to the correct width and depth?<br>(Refer to asphalt reinstatment Mark up)

  • Photos of Asphalt installation

  • Emulsion tack coat - Photo required

  • Asphalt key-in layer #1 - 50mm DG14

  • Asphalt key-in layer #2 - 50mm DG14

  • Asphalt top layer wearing course - 50mm DG14

  • Has the asphalt been smooth drum rolled to the required compaction levels?

  • Has Polymer Modified Bitumen (PMB) Joint Seal tape been installed along aspalt joints?

  • Asphalt detail.JPG
The templates available in our Public Library have been created by our customers and employees to help get you started using SafetyCulture's solutions. The templates are intended to be used as hypothetical examples only and should not be used as a substitute for professional advice. You should seek your own professional advice to determine if the use of a template is permissible in your workplace or jurisdiction. You should independently determine whether the template is suitable for your circumstances.